5 locali in vendita

Villa San Giovanni In Tuscia, Via dei grottini
€ 59.000
5 locali 5 locali
120 Mq 120 Mq
3 bagni 3 bagni

5 locali in vendita

Villa San Giovanni In Tuscia, Via dei grottini

Descrizione annuncio

Casa Semindipendente in Vendita

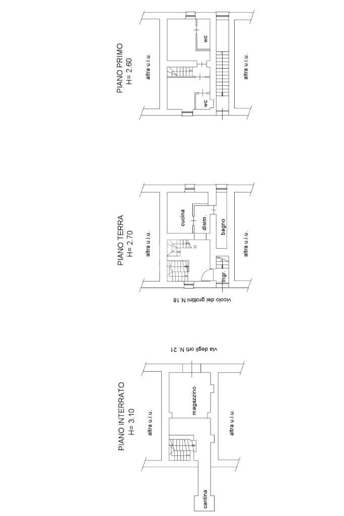
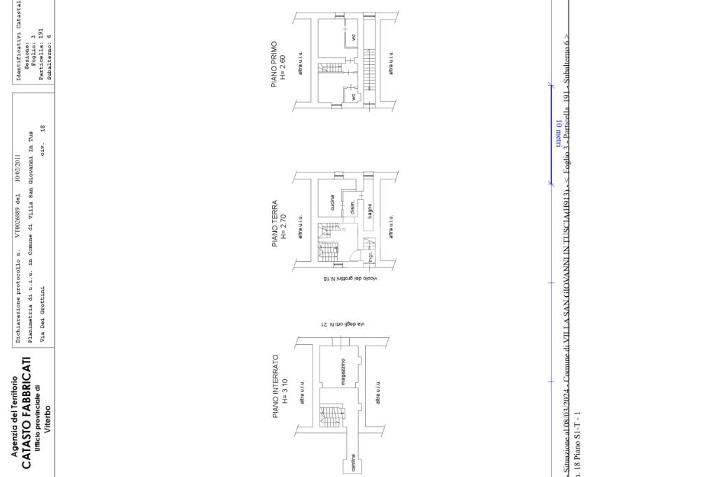
Se siete alla ricerca di un'abitazione che coniughi comfort e spazio, questa casa semindipendente su tre livelli è la soluzione ideale per la vostra famiglia. Situata in una tranquilla zona residenziale di Villa San Giovanni in Tuscia, l’immobile si presenta in ottime condizioni generali, pronto per essere abitato senza necessità di interventi.

Il piano seminterrano presenta un'ampia taverna con suggestivi soffitti a volta, perfetta per serate in compagnia o come area giochi. Completa il piano una cantina, ideale per gli amanti del vino o per riporre oggetti stagionali.

Al primo piano l’ingresso indipendente si apre su un disimpegno che conduce a una cucina spaziosa, dove preparare i vostri piatti preferiti sarà un vero piacere. Il bagno, dotato di doccia, offre praticità per le esigenze quotidiane.

La zona notte sita al secondo piano, è caratterizzata da una camera matrimoniale luminosa con balcone privato, ideale per godere di momenti di relax all’aperto. Completano il piano due bagni privati con doccia, uno per la camera matrimoniale e l'altro per la cameretta.

Il giardino mattonato vi accoglierà con il suo spazio all'aperto, perfetto per godere del sole e della natura circostante. A disposizione anche un magazzino per riporre attrezzature e un orto, dove coltivare piante e ortaggi freschi.

Questa casa è una vera oasi di tranquillità e funzionalità, pensata per rispondere a tutte le esigenze familiari. Non perdere l’occasione di visitarla: contattaci per fissare un appuntamento e scoprire tutti i suoi dettagli!

Mostra tutto

Nelle vicinanze

Scuole Scuole
Scuola media "Mario e Giovanni Alberti"
2,2 Km
Scuola materna
2,3 Km
Scuola elementare
2,4 Km
Farmacia Farmacia
Palombi
2,4 Km
Supermercati Supermercati
CONAD
2,3 Km
Alba
2,4 Km
Negozi Negozi
Guastella
2,3 Km
Il mondo delle fate
2,3 Km
Dondolina
2,4 Km
Il Trenino
2,4 Km
Negozi
2,4 Km
Bar Bar
Bar
150 m
Feeling Café
2,2 Km
Etruria
2,3 Km
Oasis
2,3 Km
Paradiso
2,4 Km
Ristoranti Ristoranti
Da Peppone
590 m
Ristoranti
2,3 Km
I...do pizza
2,4 Km
La Torretta
2,4 Km
L'Introvabile
2,5 Km
Mostra tutto

Caratteristiche

Rif.:
61132550
Piano:
Su più livelli di 3
Totale piani:
3
Balconi:
1
Camere da letto:
3
Arredamento:
Assente
Mostra tutto
Prezzo Prezzo
€ 59.000
Rata mutuo Rata mutuo
€ 272 / mese
Proponi il tuo prezzoProponi il tuo prezzo

Classe Energetica

G
G
G
G
G
G
G
G
G
Anno di costruzione:
1967
Riscaldamento:
Autonomo
Tipo impianto:
A radiatori
Tipo alimentazione:
Metano

Ti interessa visionare l'immobile?

Fissa un appuntamento  Fissa un appuntamento

Richiedi informazioni

* Questi campi sono obbligatori

Calcola il tuo mutuo

Semplice e senza impegno
Anticipo

( % )
Mutuo

( % )

pochi semplici passi

inserisci i tuoi dati
Questionario completato
Grazie per aver richiesto un appuntamento senza impegno con un nostro Consulente del Credito e Assicurativo.

Hai inserito correttamente tutti i dati necessari e a breve riceverai una e-mail con un link da convalidare per inviare i tuoi dati.
Affiliato
Immobiliare Vetralla Srl
Via Roma, 11 01019 Vetralla (VT)

Il nostro staff


  • Daniele Casamassa
    Affiliato

  • Michela Barbini
    Coordinatrice

  • Melissa Bertocci
    Responsabile

  • Francesca Capuzzi
    Collaboratrice

  • Roberta Marras
    Responsabile
Via Roma, 11 01019 Vetralla (VT)
Zona: Vetralla-Blera
Mostra su mappa
Affiliato
Immobiliare Vetralla Srl
Via Roma, 11 01019 Vetralla (VT)

2025 Tecnocasa Franchising S.p.A. - P. IVA 08365160152 - Via Monte Bianco 60/A 20089 Rozzano (MI). Ogni agenzia ha un proprio titolare ed è autonoma. Privacy policy | Policy utilizzo | Cookie policy