Porzione di bifamiliare in vendita

Vetralla, Via Aurelia Bis - Madonna Del Ponte
€ 165.000
6 locali 6 locali
300 Mq 300 Mq
2 bagni 2 bagni

Porzione di bifamiliare in vendita

Vetralla, Via Aurelia Bis - Madonna Del Ponte

Descrizione annuncio

VETRALLA, siete alla ricerca della casa dei vostri sogni, in un contesto tranquillo e accogliente? Abbiamo il piacere di presentarvi una splendida porzione di bifamiliare ristrutturata, perfetta per famiglie e amanti del comfort.

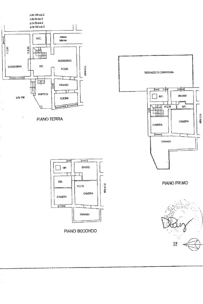
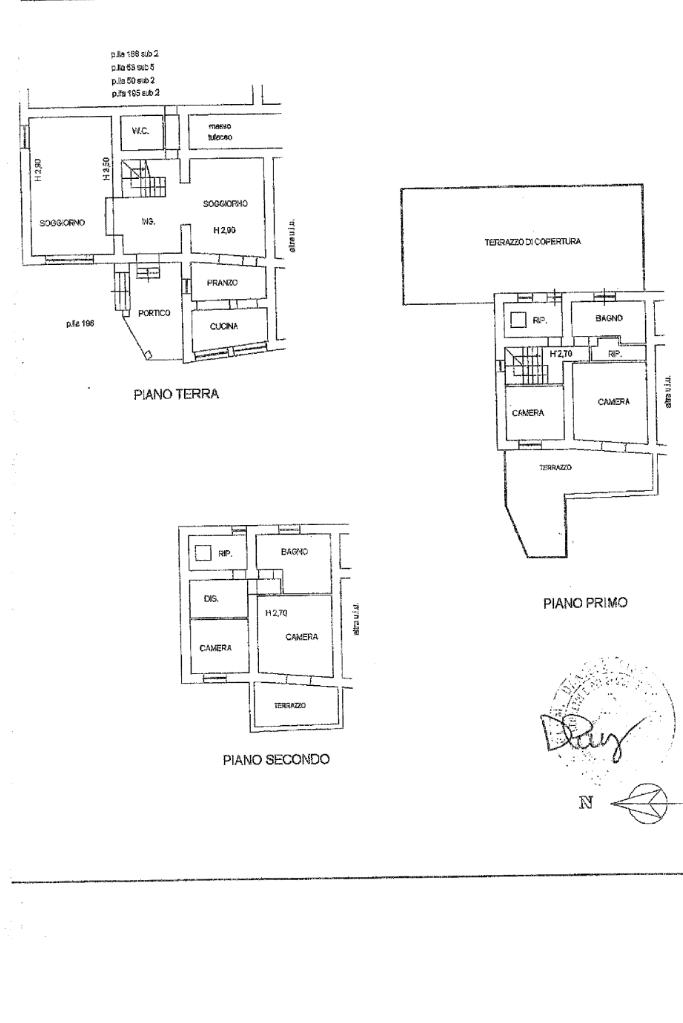
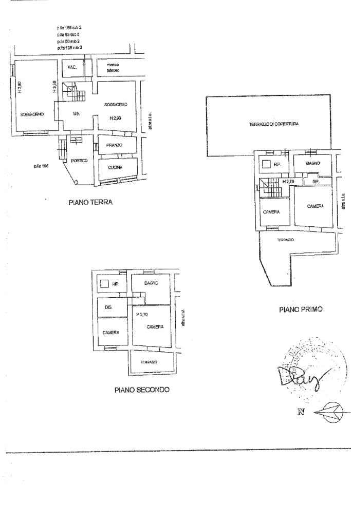
Questa abitazione si sviluppa su tre livelli e offre spazi luminosi e ben distribuiti. Al piano terra, verrete accolti da un elegante portico che introduce ad un disimpegno. Un ampio soggiorno, arricchito da un affascinante camino sarà lo spazio ideale per le vostre serate invernali. Completano il piano un funzionale bagno e una cucina abitabile, anch'essa dotata di camino, perfetta per i vostri momenti conviviali.

Salendo al primo piano, troverete una comoda zona notte composta da due camere da letto, di cui una con accesso a un delizioso terrazzo, ideale per godere di momenti di relax all’aria aperta. Un secondo bagno, completo di vasca, offre ulteriore comodità.

La proprietà include anche una mansarda allo stato rustico, pronta per essere personalizzata secondo le vostre esigenze, un garage spazioso e una dependance, perfetta per ospiti o come spazio per hobby.

Non lasciatevi sfuggire questa imperdibile opportunità! Contattateci per prenotare una visita e scoprire di persona tutte le meraviglie che questa porzione di bifamiliare ha da offrire. La vostra nuova casa vi aspetta

Mostra tutto

Nelle vicinanze

Scuole Scuole
Scuole
1,9 Km
Farmacia Farmacia
Farmacia
1,1 Km
Farmacia Vetralla
1,8 Km
Supermercati Supermercati
Supermercati
1,5 Km
EuroSpin
1,8 Km
COOP
1,9 Km
Hurrà
2,9 Km
Negozi Negozi
Dal Fornaio
1,3 Km
Alimentari Frutta e Verdura
1,4 Km
Pasticceria Forno Belli
1,6 Km
Bar Bar
Bar caffe e caffe
1,3 Km
Bar Caffeteria Jolly Blu
1,4 Km
Times Bar
1,4 Km
Bar la Fontana
1,6 Km
VilLa Cafè
1,8 Km
Ristoranti Ristoranti
Trattoria La Lanterna
1,4 Km
Bar Ristorante
1,5 Km
Il Babà Ristorante Pizzeria
1,8 Km
Antica Locanda della via Francigena
2,5 Km
Antiche Macine
2,8 Km
Mostra tutto

Caratteristiche

Rif.:
61087703
Piano:
Terra con giardino di 3
Totale piani:
3
Box:
1
Terrazzi:
2
Camere da letto:
2
Mostra tutto
Prezzo Prezzo
€ 165.000
Rata mutuo Rata mutuo
€ 777 / mese
Proponi il tuo prezzoProponi il tuo prezzo

Classe Energetica

G
G
G
G
G
G
G
G
G
Anno di costruzione:
1967
Riscaldamento:
Autonomo
Tipo impianto:
A radiatori
Tipo alimentazione:
Metano

Ti interessa visionare l'immobile?

Fissa un appuntamento  Fissa un appuntamento

Richiedi informazioni

Clicca su Leggi per aprire l'informativa
* Questi campi sono obbligatori

Calcola il tuo mutuo

Semplice e senza impegno
Anticipo

( % )
Mutuo

( % )

pochi semplici passi

inserisci i tuoi dati
Questionario completato
Grazie per aver richiesto un appuntamento senza impegno con un nostro Consulente del Credito e Assicurativo.

Hai inserito correttamente tutti i dati necessari e a breve riceverai una e-mail con un link da convalidare per inviare i tuoi dati.
Affiliato
Immobiliare Vetralla Srl
Via Roma, 11 01019 Vetralla (VT)

Il nostro staff


  • Daniele Casamassa
    Affiliato

  • Michela Barbini
    Coordinatrice

  • Melissa Bertocci
    Responsabile

  • Claudio Cappelli
    Collaboratore

  • Francesca Capuzzi
    Collaboratrice

  • Roberta Marras
    Responsabile

  • Filippo Aquilani
    Collaboratore
Via Roma, 11 01019 Vetralla (VT)
Zona: Vetralla-Blera
Mostra su mappa
Affiliato
Immobiliare Vetralla Srl
Via Roma, 11 01019 Vetralla (VT)

2026 Tecnocasa Franchising S.p.A. - P. IVA 08365160152 - Via Monte Bianco 60/A 20089 Rozzano (MI). Ogni agenzia ha un proprio titolare ed è autonoma. Privacy policy | Policy utilizzo | Cookie policy