Rustico in vendita

Vetralla, Via Nino Bixio - La Botte
€ 65.000
4 locali 4 locali
133 Mq 133 Mq
3 bagni 3 bagni

Rustico in vendita

Vetralla, Via Nino Bixio - La Botte

Descrizione annuncio

Rustico da Ultimare nel Cuore di La Botte

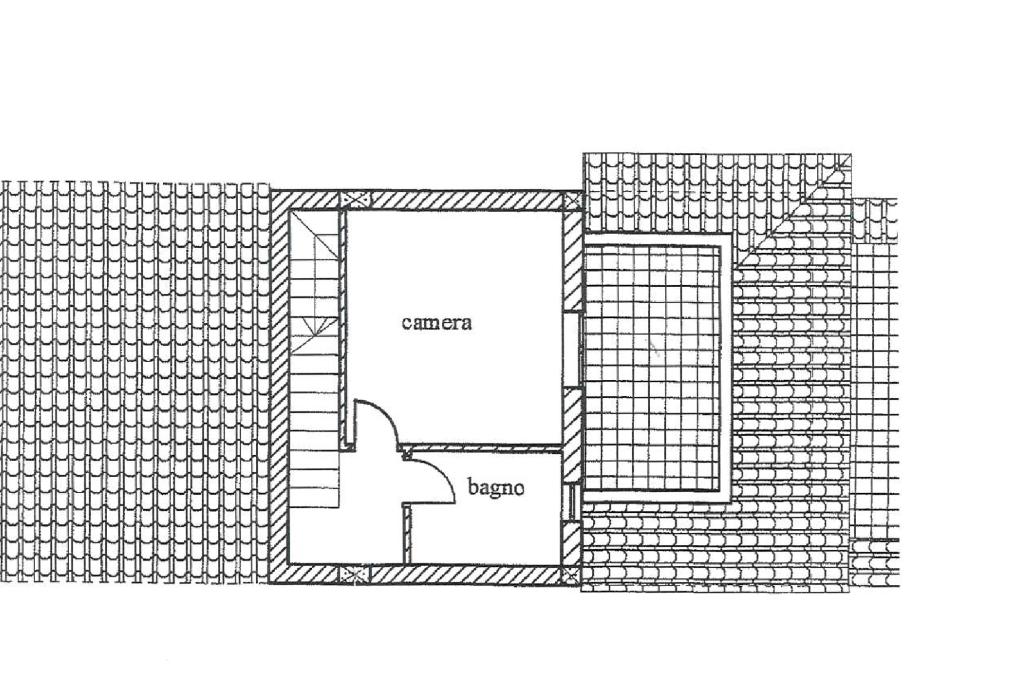
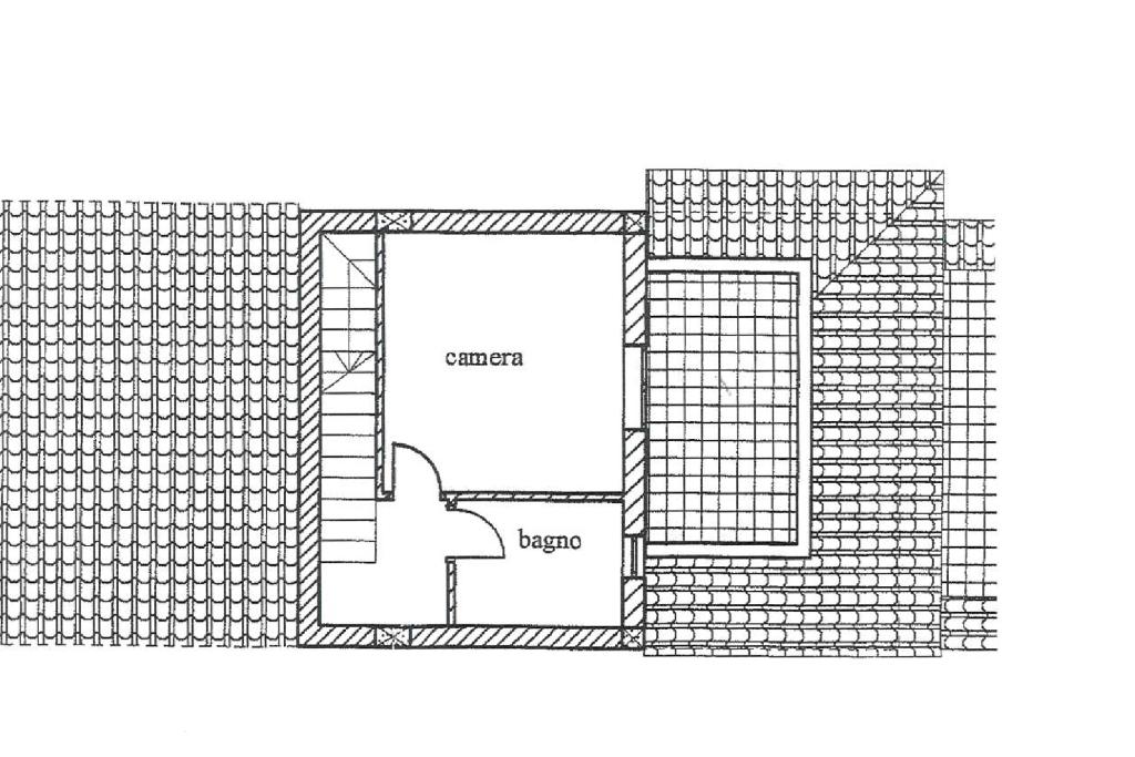
Sognate una casa che rifletta il vostro stile e le vostre esigenze? Vi presentiamo un'opportunità imperdibile: un rustico di villetta singola, da ultimare, situato nel suggestivo contesto di La Botte. Questo immobile si sviluppa su tre livelli e offre un grande potenziale per diventare la vostra nuova casa da sogno.

Al piano seminterrano un'accogliente taverna con portico vi aspetta, ideale per momenti di convivialità e relax in compagnia di amici e familiari. Un luogo perfetto dove creare ricordi indimenticabili.

Al primo piano, invece, il progetto prevede uno splendido soggiorno con angolo cottura, arricchito da un incantevole terrazzo, elegante e funzionale. Uno studio perfetto per chi lavora da casa e un bagno assicurando così comfort e praticità per tutta la famiglia.

Il terzo ed ultimo piano è caratterizzato da un'ulteriore camera, anch'essa con terrazzo, completa di un bagno privato. Gli spazi versatili e accoglienti vi offriranno la libertà di personalizzare il vostro ambiente secondo i vostri gusti e necessità.

A completare questa straordinaria proprietà, un giardino privato di circa 200 mq, dove trascorrere piacevoli momenti all'aperto.

Non lasciatevi sfuggire questa opportunità unica di personalizzare e ultimare il vostro rifugio ideale. Contattateci oggi stesso per maggiori informazioni e per organizzare una visita! La vostra nuova vita inizia qui.

Mostra tutto

Nelle vicinanze

Trasporto pubblico Trasporto pubblico
Vetralla
Vetralla
300 m
Trasporto pubblico
1,2 Km
Scuole Scuole
Scuole
2,5 Km
Farmacia Farmacia
Farmacia
1,1 Km
Farmacia Vetralla
3,0 Km
Supermercati Supermercati
Hurrà
1,5 Km
COOP
2,9 Km
EuroSpin
2,9 Km
Bar Bar
Bar
1,5 Km
VilLa Cafè
2,9 Km
Ristoranti Ristoranti
San Francesco
950 m
Antiche Macine
1,6 Km
L'imperiale
1,8 Km
Il Babà Ristorante Pizzeria
2,9 Km
Mostra tutto

Caratteristiche

Rif.:
61100459
Piano:
Su più livelli di 3
Totale piani:
3
Posti auto:
1
Terrazzi:
2
Camere da letto:
2
Mostra tutto
Prezzo Prezzo
€ 65.000
Rata mutuo Rata mutuo
€ 306 / mese
Proponi il tuo prezzoProponi il tuo prezzo

Classe Energetica

Questo immobile è esente da classe energetica
Anno di costruzione:
1986
Riscaldamento:
Assente

Ti interessa visionare l'immobile?

Fissa un appuntamento  Fissa un appuntamento

Richiedi informazioni

Clicca su Leggi per aprire l'informativa
* Questi campi sono obbligatori

Calcola il tuo mutuo

Semplice e senza impegno
Anticipo

( % )
Mutuo

( % )

pochi semplici passi

inserisci i tuoi dati
Questionario completato
Grazie per aver richiesto un appuntamento senza impegno con un nostro Consulente del Credito e Assicurativo.

Hai inserito correttamente tutti i dati necessari e a breve riceverai una e-mail con un link da convalidare per inviare i tuoi dati.
Affiliato
Immobiliare Vetralla Srl
Via Roma, 11 01019 Vetralla (VT)

Il nostro staff


  • Daniele Casamassa
    Affiliato

  • Michela Barbini
    Coordinatrice

  • Melissa Bertocci
    Responsabile

  • Claudio Cappelli
    Collaboratore

  • Francesca Capuzzi
    Collaboratrice

  • Roberta Marras
    Responsabile

  • Filippo Aquilani
    Collaboratore
Via Roma, 11 01019 Vetralla (VT)
Zona: Vetralla-Blera
Mostra su mappa
Affiliato
Immobiliare Vetralla Srl
Via Roma, 11 01019 Vetralla (VT)

2026 Tecnocasa Franchising S.p.A. - P. IVA 08365160152 - Via Monte Bianco 60/A 20089 Rozzano (MI). Ogni agenzia ha un proprio titolare ed è autonoma. Privacy policy | Policy utilizzo | Cookie policy