Quadrilocale in vendita

Vetralla, Via S. Giuseppe
€ 28.000
4 locali 4 locali
97 Mq 97 Mq
1 bagno 1 bagno

Quadrilocale in vendita

Vetralla, Via S. Giuseppe

Descrizione annuncio

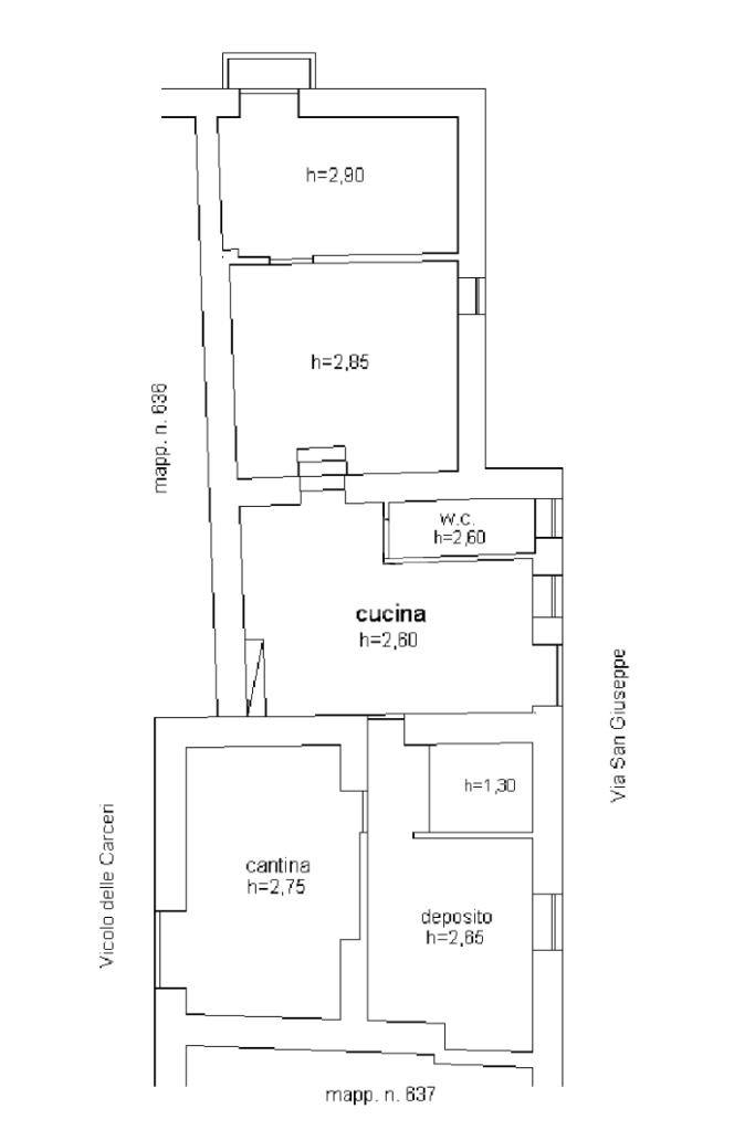
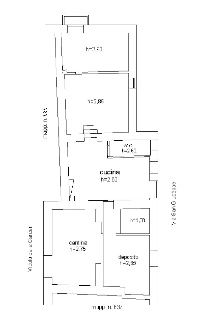
Appartamento da Ristrutturare nel Cuore di Vetralla

Se state cercando un'opportunità unica nel suggestivo centro storico di Vetralla, abbiamo ciò che fa per voi! Vi presentiamo un appartamento da ristrutturare, situato a pochi passi dalla storica piazza principale, dove il fascino del passato incontra la vivacità della vita moderna.

Questo immobile, con ingresso indipendente e posizionato al piano rialzato, si distingue per una calda e accogliente cucina dotata di camino, perfetta per momenti di convivialità. La spaziosa sala da pranzo rappresenta il luogo ideale per cene in compagnia, mentre il bagno con doccia offre funzionalità e comfort.

Le due camere matrimoniali garantiscono spazi generosi, con una delle camere che si affaccia su un delizioso balconcino. Inoltre, è presente un'ulteriore stanza adibita attualmente a cantina, che può essere facilmente riconvertita secondo le vostre esigenze personali.

Grazie alla sua posizione strategica nel cuore di Vetralla, questo appartamento non solo offre un'opportunità abitativa, ma rappresenta anche un investimento ideale per chi desidera avviare una struttura ricettiva o una casa vacanze.

Non perdere l'occasione di trasformare questo spazio in un luogo incantevole e unico. Contattaci per maggiori informazioni e per organizzare una visita!

Mostra tutto

Nelle vicinanze

Trasporto pubblico Trasporto pubblico
stazione di Tre Croci
stazione di Tre Croci
3,0 Km
Scuole Scuole
Scuole
1,3 Km
Farmacia Farmacia
Farmacia
350 m
Farmacia Vetralla
720 m
Farmacia Zonghi e Cerri
2,9 Km
Supermercati Supermercati
Supermercati
350 m
EuroSpin
790 m
COOP
840 m
Hurrà
2,2 Km
Negozi Negozi
Dal Fornaio
70 m
Alimentari Frutta e Verdura
210 m
Pasticceria Forno Belli
500 m
Mini Market
3,0 Km
Bar Bar
Bar caffe e caffe
60 m
Bar Caffeteria Jolly Blu
220 m
Times Bar
280 m
Bar la Fontana
540 m
VilLa Cafè
780 m
Ristoranti Ristoranti
Bar Ristorante
240 m
Trattoria La Lanterna
280 m
Il Babà Ristorante Pizzeria
760 m
Antica Locanda della via Francigena
1,4 Km
Antiche Macine
2,3 Km
Mostra tutto

Caratteristiche

Rif.:
61141661
Piano:
Basso di 2
Totale piani:
2
Balconi:
1
Camere da letto:
2
Arredamento:
Assente
Mostra tutto
Prezzo Prezzo
€ 28.000
Rata mutuo Rata mutuo
€ 132 / mese
Proponi il tuo prezzoProponi il tuo prezzo

Classe Energetica

G
G
G
G
G
G
G
G
G
EP globale non rinnovabile:
175.00 kW h/m² anno
EP globale rinnovabile:
175.00 kW h/m² anno
EP invernale del fabbricato:
EP estiva del fabbricato:
Anno di costruzione:
1967
Riscaldamento:
Assente

Ti interessa visionare l'immobile?

Fissa un appuntamento  Fissa un appuntamento

Richiedi informazioni

Clicca su Leggi per aprire l'informativa
* Questi campi sono obbligatori

Calcola il tuo mutuo

Semplice e senza impegno
Anticipo

( % )
Mutuo

( % )

pochi semplici passi

inserisci i tuoi dati
Questionario completato
Grazie per aver richiesto un appuntamento senza impegno con un nostro Consulente del Credito e Assicurativo.

Hai inserito correttamente tutti i dati necessari e a breve riceverai una e-mail con un link da convalidare per inviare i tuoi dati.
Affiliato
Immobiliare Vetralla Srl
Via Roma, 11 01019 Vetralla (VT)

Il nostro staff


  • Daniele Casamassa
    Affiliato

  • Michela Barbini
    Coordinatrice

  • Melissa Bertocci
    Responsabile

  • Claudio Cappelli
    Collaboratore

  • Francesca Capuzzi
    Collaboratrice

  • Roberta Marras
    Responsabile

  • Filippo Aquilani
    Collaboratore
Via Roma, 11 01019 Vetralla (VT)
Zona: Vetralla-Blera
Mostra su mappa
Affiliato
Immobiliare Vetralla Srl
Via Roma, 11 01019 Vetralla (VT)

2026 Tecnocasa Franchising S.p.A. - P. IVA 08365160152 - Via Monte Bianco 60/A 20089 Rozzano (MI). Ogni agenzia ha un proprio titolare ed è autonoma. Privacy policy | Policy utilizzo | Cookie policy