Multilocale in vendita

Blera, Via giorgina
€ 88.000
6 locali 6 locali
140 Mq 140 Mq
2 bagni 2 bagni

Multilocale in vendita

Blera, Via giorgina

Descrizione annuncio

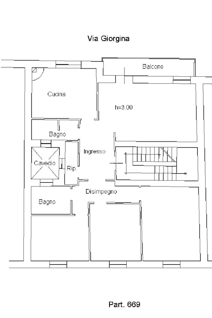
Ampio Appartamento in Vendita nel Cuore di Blera

Se stai cercando una soluzione abitativa di prestigio nel centro storico di Blera, non lasciarti sfuggire questa straordinaria opportunità! Proponiamo in vendita un appartamento di ampia metratura situato al secondo piano di un elegante edificio, caratterizzato da ottime condizioni generali e spazi interni ben distribuiti, perfetti per famiglie e professionisti.

L’immobile si apre su un accogliente ingresso che conduce a un pratico ripostiglio, ideale per mantenere l'ordine. La cucina abitabile, arricchita da un suggestivo camino, rappresenta il cuore della casa, dove poter vivere piacevoli momenti in famiglia. Il luminoso soggiorno, dotato di accesso al balcone, offre un angolo di tranquillità dove godere della vista del centro storico e rilassarsi all’aria aperta. Inoltre un bagno con doccia garantisce comodità e funzionalità per la zona giorno.

La zona notte è concepita per garantire il massimo comfort, con due ampie camere matrimoniali e una cameretta, perfetta per i più piccoli o come studio. Completa la proprietà un secondo bagno con vasca, ideale per momenti di relax dopo una lunga giornata.

Questo appartamento non è solo un luogo dove vivere, ma un vero e proprio rifugio nel cuore pulsante di Blera, vicino alle principali attività commerciali e tutte le comodità che la vita di paese può offrire.

Non perdere l'opportunità di visitare questo gioiello immobiliare. Contattaci per ulteriori informazioni o per prenotare una visita

Mostra tutto

Nelle vicinanze

Scuole Scuole
Scuola elementare
340 m
Scuola materna
380 m
Scuola media "Mario e Giovanni Alberti"
750 m
Farmacia Farmacia
Palombi
70 m
Supermercati Supermercati
Alba
80 m
CONAD
580 m
Negozi Negozi
Il Trenino
60 m
Dondolina
120 m
Negozi
200 m
Il mondo delle fate
280 m
Guastella
590 m
Bar Bar
Paradiso
40 m
Etruria
270 m
La Torretta
270 m
Bar del Ponte
440 m
Oasis
460 m
Ristoranti Ristoranti
La Torretta
270 m
Ristoranti
520 m
I...do pizza
630 m
Il laghetto
1,8 Km
Da Peppone
2,1 Km
Mostra tutto

Caratteristiche

Rif.:
61118544
Piano:
2 di 4 (Piano medio)
Balconi:
1
Camere da letto:
3
Arredamento:
Assente
Condizionamento:
Assente
Mostra tutto
Prezzo Prezzo
€ 88.000
Rata mutuo Rata mutuo
€ 415 / mese
Proponi il tuo prezzoProponi il tuo prezzo

Classe Energetica

G
G
G
G
G
G
G
G
G
EP invernale del fabbricato:
EP estiva del fabbricato:
Anno di costruzione:
1968
Riscaldamento:
Autonomo
Tipo impianto:
A radiatori
Tipo alimentazione:
Metano

Ti interessa visionare l'immobile?

Fissa un appuntamento  Fissa un appuntamento

Richiedi informazioni

Clicca su Leggi per aprire l'informativa
* Questi campi sono obbligatori

Calcola il tuo mutuo

Semplice e senza impegno
Anticipo

( % )
Mutuo

( % )

pochi semplici passi

inserisci i tuoi dati
Questionario completato
Grazie per aver richiesto un appuntamento senza impegno con un nostro Consulente del Credito e Assicurativo.

Hai inserito correttamente tutti i dati necessari e a breve riceverai una e-mail con un link da convalidare per inviare i tuoi dati.
Affiliato
Immobiliare Vetralla Srl
Via Roma, 11 01019 Vetralla (VT)

Il nostro staff


  • Daniele Casamassa
    Affiliato

  • Michela Barbini
    Coordinatrice

  • Melissa Bertocci
    Responsabile

  • Claudio Cappelli
    Collaboratore

  • Francesca Capuzzi
    Collaboratrice

  • Roberta Marras
    Responsabile

  • Filippo Aquilani
    Collaboratore
Via Roma, 11 01019 Vetralla (VT)
Zona: Vetralla-Blera
Mostra su mappa
Affiliato
Immobiliare Vetralla Srl
Via Roma, 11 01019 Vetralla (VT)

2026 Tecnocasa Franchising S.p.A. - P. IVA 08365160152 - Via Monte Bianco 60/A 20089 Rozzano (MI). Ogni agenzia ha un proprio titolare ed è autonoma. Privacy policy | Policy utilizzo | Cookie policy